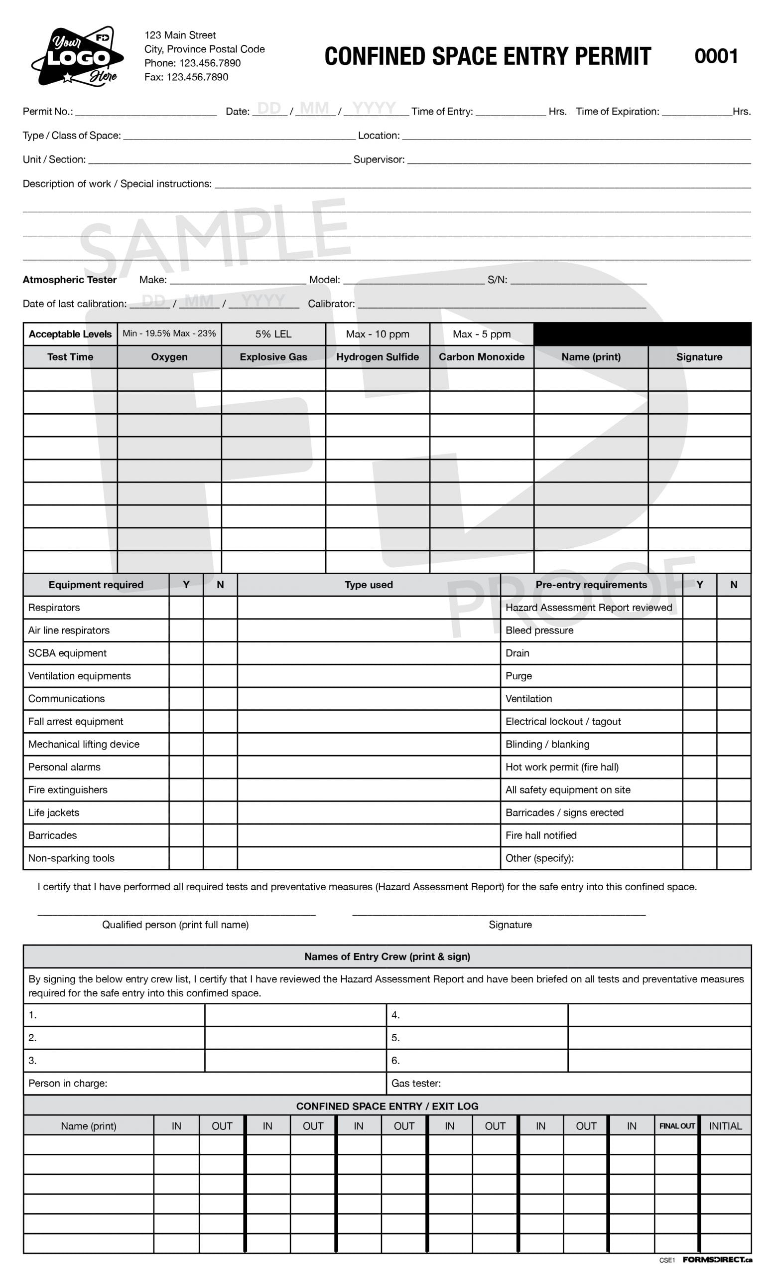
Exploring confined spaces can be risky, which is why it’s crucial to keep track of who enters and exits them. A printable confined space entry log sheet can help maintain safety protocols.
By using a log sheet, you can ensure that all necessary precautions are taken before anyone enters a confined space. It serves as a record of who has entered, when they entered, and when they left.
Printable Confined Space Entry Log Sheet
Printable Confined Space Entry Log Sheet
Having a printable log sheet readily available can streamline the process of tracking entries and exits. It provides a clear and organized way to document each person’s activities within the confined space.
With a log sheet, you can easily identify who is in the confined space at any given time. This information is vital in the event of an emergency or if there is a need to communicate with individuals inside the confined space.
Remember to update the log sheet regularly and keep it in a secure location. This will ensure that the information is accurate and easily accessible when needed. Safety should always be a top priority when working in confined spaces.
Using a printable confined space entry log sheet is a simple yet effective way to enhance safety measures and ensure proper documentation. By implementing this tool, you can create a safer work environment for everyone involved.
Confined Space Entry Log Form Frontline Data Solutions
Confined Space Entry CSE1 Custom Form Template Forms Direct
Confined Space Entry Log Confine Space Entry Register Log in And Out For Confined Space Workers Safety Logs Working Logs Site Log Etsy
Confined Space Entry Log Confine Space Entry Register Log in And Out For Confined Space Workers Safety Logs Working Logs Site Log Etsy
Confined Space Entry Log Construction Files





